Portfolio
Resume
Contact
Menu
GARY McNAIR
Portfolio
Resume
Contact
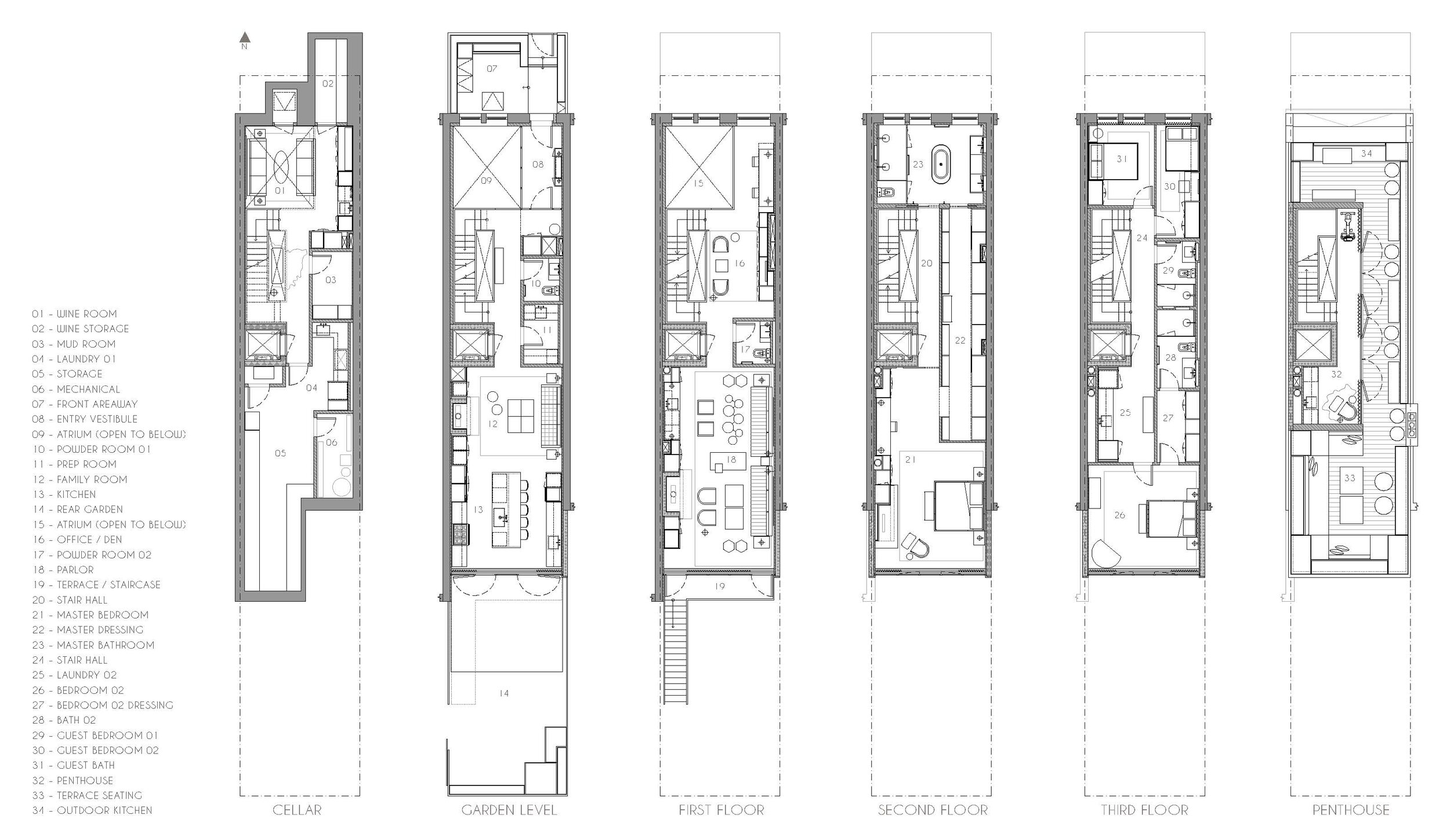
UPPER WEST SIDE TOWNHOME
Click on any of the images below to enlarge.
View fullsize
View fullsize
View fullsize
View fullsize
View fullsize
View fullsize
View fullsize
View fullsize
View fullsize
View fullsize
View fullsize
View fullsize
View fullsize
View fullsize
FURNITURE PLAN